Terenuri de vânzare în Bucureşti

    Am găsit 7 anunțuri
       
    Teren intravilan 27.580 mp, Sector 1 - 1
    Teren intravilan 27.580 mp, Sector 1 - 2
    Teren intravilan 27.580 mp, Sector 1 - 3
    Teren intravilan 27.580 mp, Sector 1 - 4

    Vânzare Teren Drumul Agatului

    Teren
    Siseşti, Sector 1, Bucureşti
    €4.950.000€179 /m²
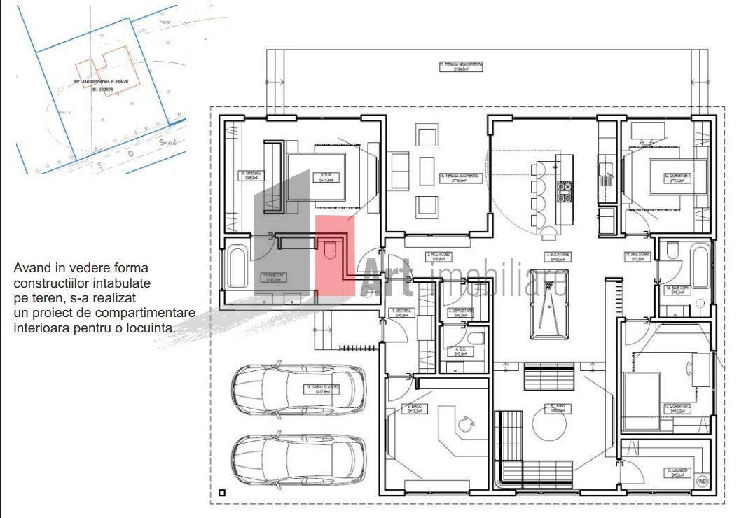
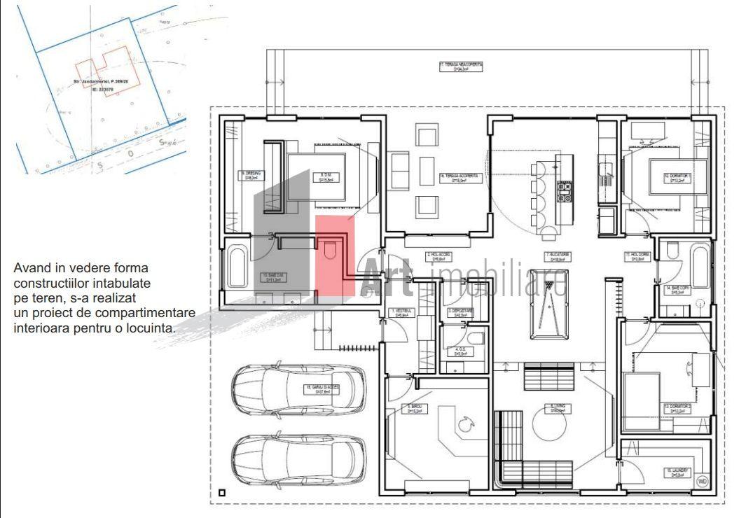
    Teren intravilan 27.580 mp, Sector 1 Vă prezentăm spre vânzare, în regim de exclusivitate, un teren intravilan cu o suprafață de 27.580 mp, situat pe Strada Drumul Agatului nr. 224-234, Sector 1, București. Proprietatea este încadrată conform PUG în zona L1c, având POT 45% și CUT 1,9, iar pentru aceasta a fost depusă documentația pentru Plan Urbanistic Zonal (PUZ), aflat în curs de aprobare. Caracteristici: • Front stradal: aprox. 95 m la Drumul Agatului și 290 m la Drumul Piscul Nou • Utilități (gaz și curent) disponibile în imediata vecinătate • Proprietar: persoană fizică Localizare și acces: Proprietatea se află într-o zonă în dezvoltare, cu acces facil către Aeroportul Henri Coandă, Aeroportul Băneasa, Mall Băneasa Shopping City și principalele artere de circulație ale Capitalei. În apropiere sunt ansambluri rezidențiale existente și proiecte planificate, precum și facilități educaționale, comerciale și de agrement. Transport public: Terenul se află la aproximativ 800 m de amplasamentul viitoarei stații de metrou Washington (Magistrala 6), ceea ce va asigura conexiunea cu Gara de Nord și Aeroportul Otopeni. Exclusivitate PropertyLab • PUZ în curs de aprobare • Potențial pentru dezvoltare rezidențială Contactați-mă astăzi pentru detalii complete și programarea unei vizionări la locație. Diana Ponoran 0758409801 [email protected] CP2458782
    Publicat 19 ianuarie 2026 17:16
        
    Pe First.ro poți explora o gamă variată de terenuri de vânzare în București, zonele limitrofe și în alte regiuni din România. Platforma este dedicată celor care caută oportunități pentru construcții rezidențiale, proiecte comerciale sau investiții imobiliare. Vei găsi terenuri intravilane și extravilane, cu diferite suprafețe și deschideri, însoțite de anunțuri imobiliare actualizate și informații esențiale despre regimul de construire, utilități și amplasare. Filtrele avansate te ajută să selectezi rapid terenurile potrivite bugetului și planurilor tale. Cauți terenuri de vânzare în Ilfov, terenuri pentru case sau proiecte rezidențiale? First.ro îți oferă vizibilitate completă și transparență, astfel încât să poți lua o decizie informată, într-un mod sigur și eficient.